td-front

Im Bürogebäude Reinhardtstraße 12–16 stehen derzeit attraktive Büroflächen zur Vermietung zur Verfügung. Die Flächen eignen sich ideal für Unternehmen unterschiedlichster Größen und Branchen, die einen zentralen und repräsentativen Standort suchen.

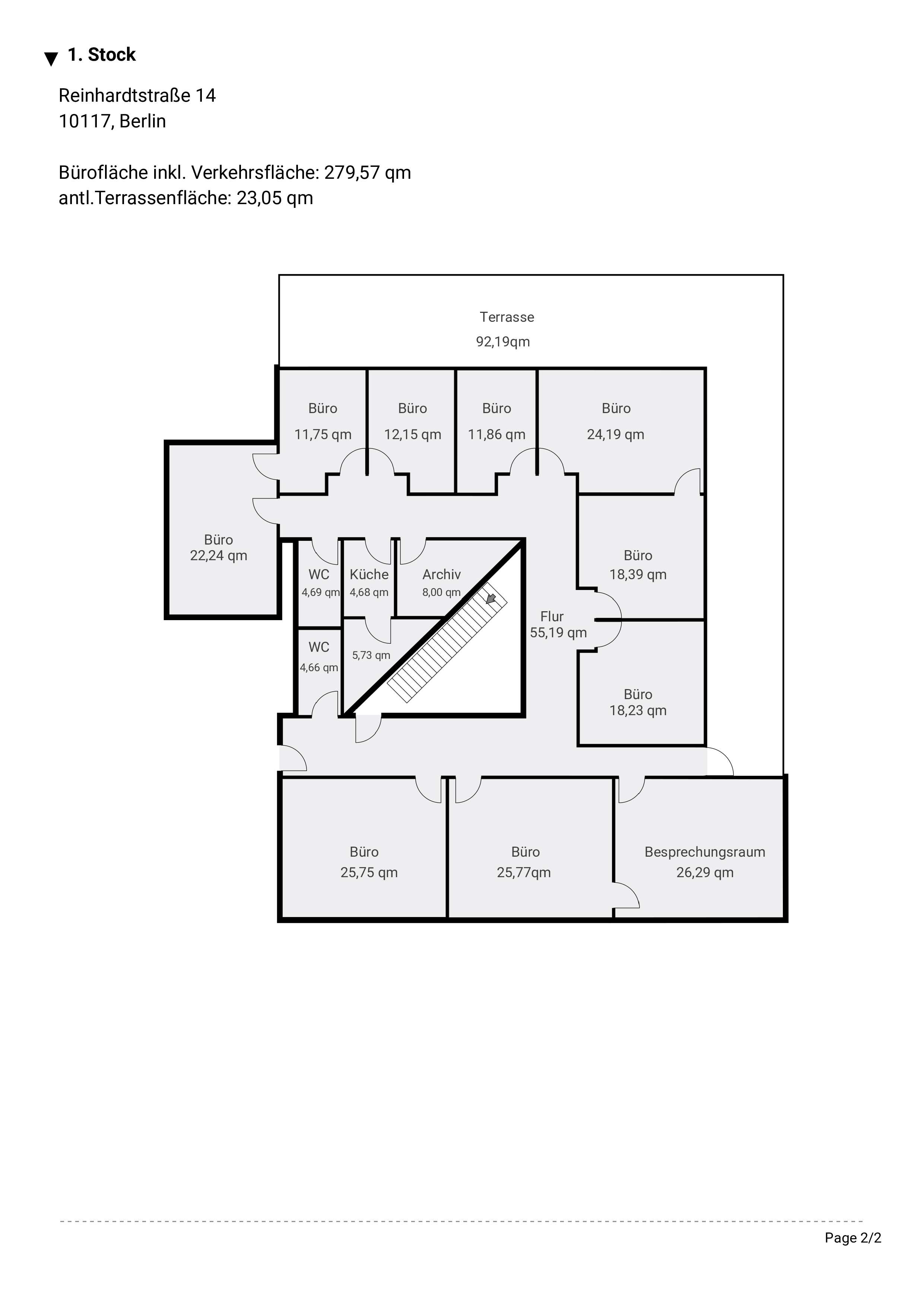
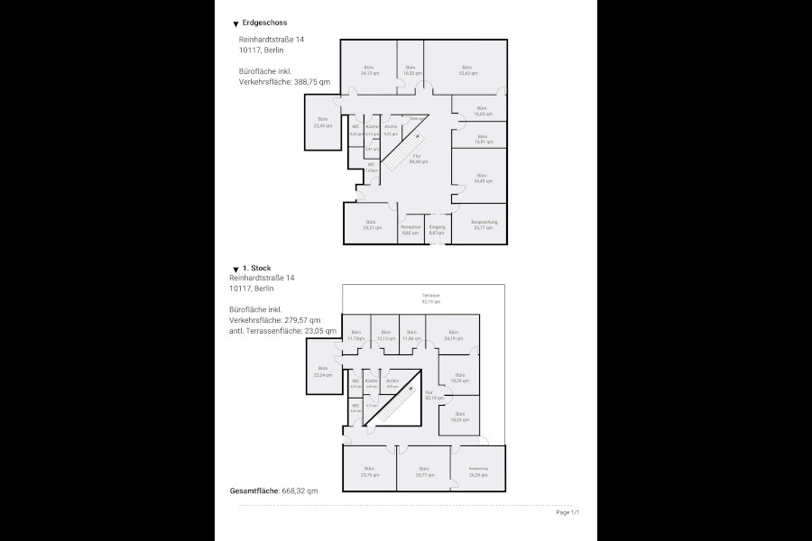
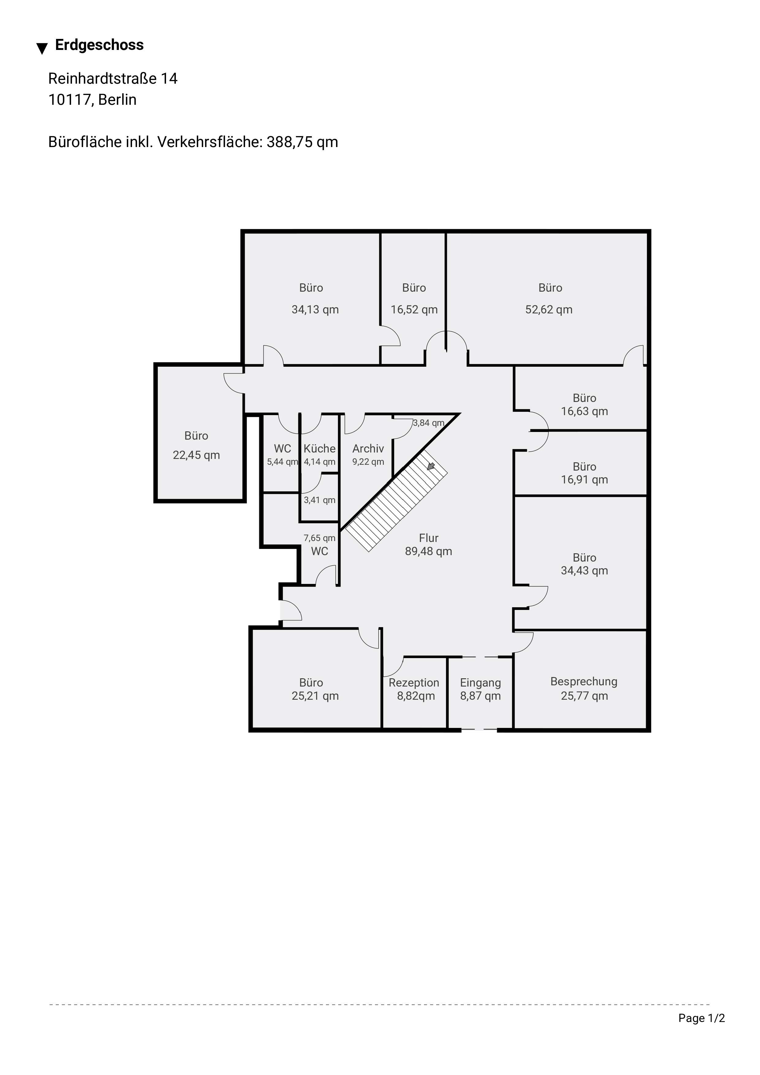
Detaillierte Informationen zu den einzelnen Flächen, Raumaufteilungen und Größen finden Sie in den bereitgestellten Grundrissen.

Der Mietpreis beträgt 27,00 € pro m².

Gerne stehen wir Ihnen für weitere Informationen oder zur Abstimmung eines Besichtigungstermins zur Verfügung und unterstützen Sie bei der Auswahl der passenden Bürofläche

Altbau 14 - 1. OG

Gesamtfläche inkl. Verkehrsfläche 247,89 m², Bezugsfrei: ab sofort

Mehr

Altbau 14 - 5. OG

Gesamtfläche inkl. Verkehrsfläche 81,53 m², Bezugsfrei: ab sofort

Mehr

Neubau 12 - EG & 1. OG

Gesamtfläche inkl. Verkehrsfläche 691,37 m², Bezugsfrei: 01.07.2026

Mehr

Neubau 12 - 3. OG

Gesamtfläche inkl. Verkehrsfläche 63,99 m², Bezugsfrei: 01.07.2026

Mehr

Altbau 14 - 5. OG

Gesamtfläche inkl. Verkehrsfläche: 178,58 m², Bezugsfrei: 01.05.2027

Mehr

Kontakt