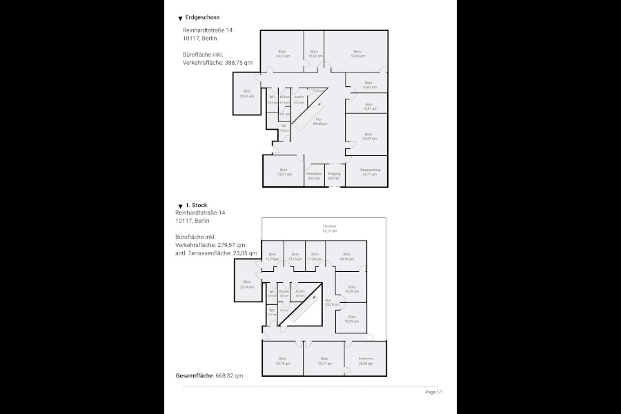
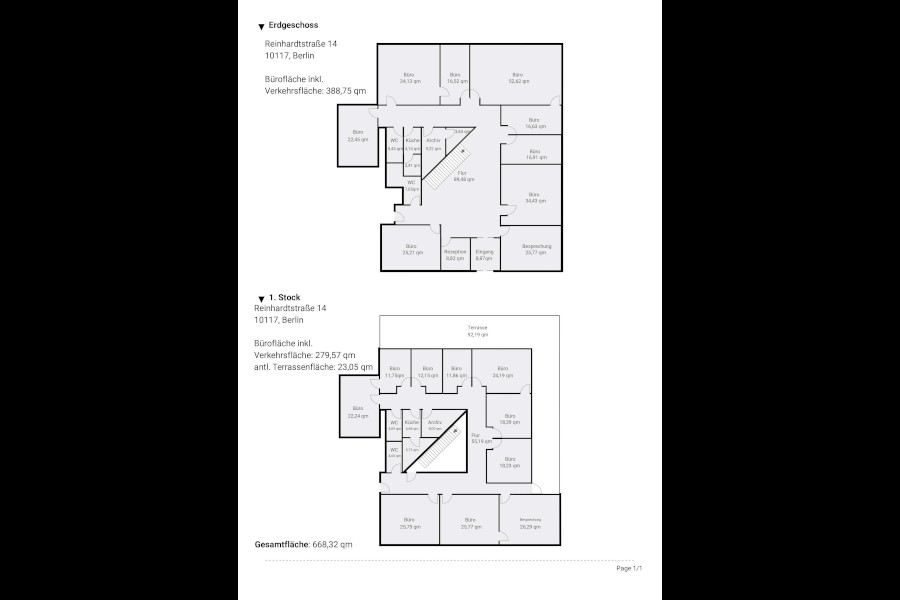
Daten und Grundrisse
| Bürofläche: | Neubau 12 - EG & 1. OG |
| Größe: | 691,37 m² |
| Miete: | 27 € / m² |
| Nebenkosten: | 6,75 € / m² |
| Bezugsfrei: | 01.07.2026 |
| Grundriss: | Neubau 12 - EG & 1. OG |
Kontakt
-
Eschweiler & Partner GmbH
Reinhardtstraße 12
10117 Berlin -
Telefon: 030 / 28 51 79 - 0
E-Mail: info@reinhardtstrassenhoefe.de